Description
Montmartre / Quartier des Abbesses
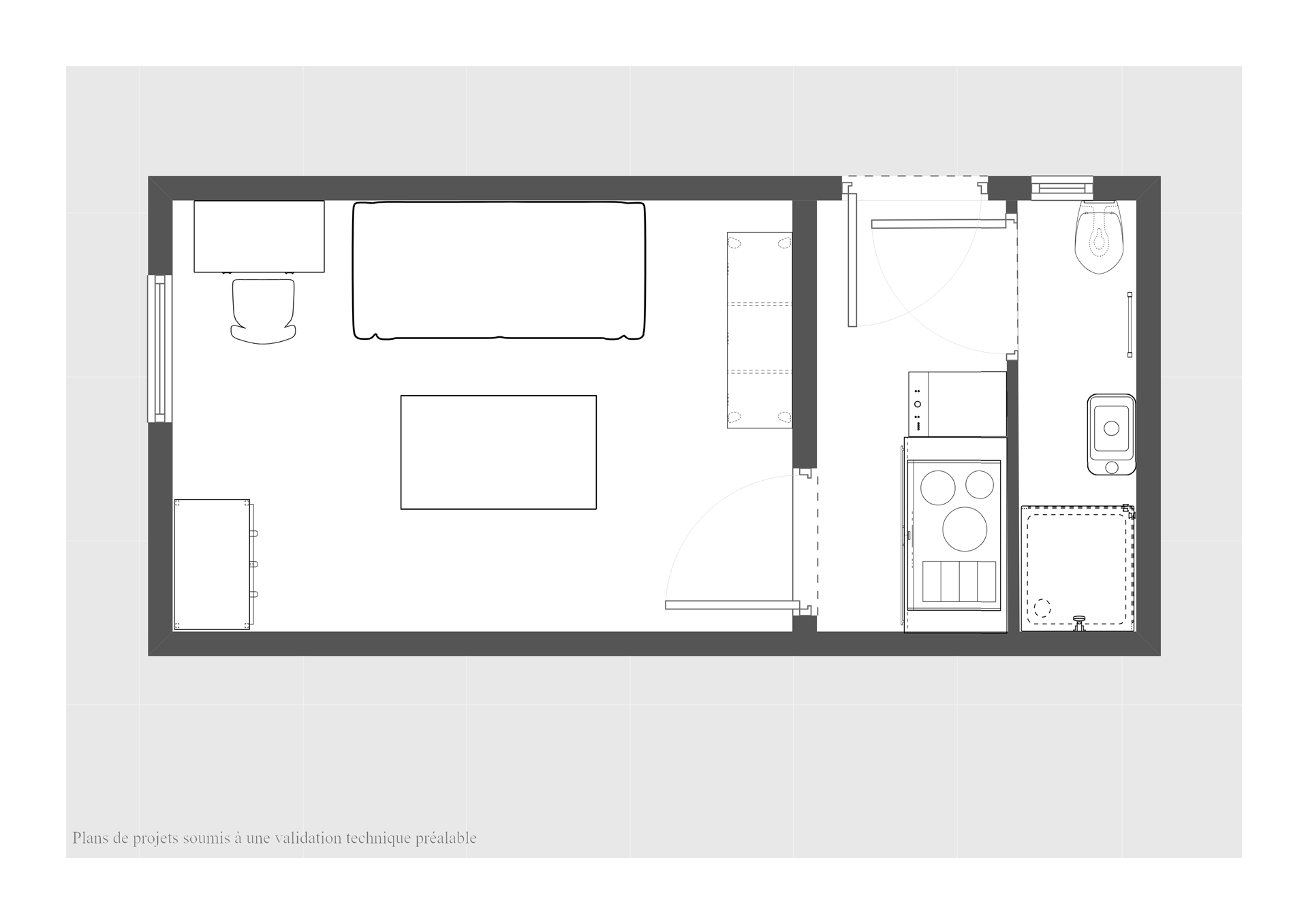
Au coeur du quartier très recherché des Abbesses, dans une rue calme située entre la rue Lepic et la rue des Abbesses, venez découvrir ce charmant studio de 15 m² parfaitement optimisé.
Situé au rez-de-chaussée d’une copropriété de caractère, il se compose d’une entrée avec cuisine, d’une agréable pièce de vie bénéficiant d’une belle hauteur sous plafond de 2,70 m, ainsi que d’une salle d’eau avec WC.
Son emplacement exceptionnel, au sein d’un quartier vivant et privilégié de la Butte Montmartre, en fait un bien particulièrement recherché.
Faibles charges ? DPE : D (à jour).
Idéal pour un premier achat, un pied-à-terre parisien ou un investissement locatif.
À visiter sans tarder…
Résumé
- Prix 170000
- Nombre de pièces 1
- Surface Carrez 14.74
- Surface au sol 14.74
- Salle d'eau 1
- Nombre étage 5
- Charges 628€
- Taxe foncière NC
- Nombre de lots 38
- Honoraires Vendeur
Aménagements :
- Chauffage individuel
- Cuisine aménagée
- Cuisine semi-ouverte
- Digicode
- Double vitrage
- Exposition Sud
- Fibre optique
- Parquet
- Répartition électrique
- Salle d'eau
Facilités
- Métro Abbesses 150m
- Métro Blanche 280m
Nous avons aimé :
- L'adresse .
- Le plan .
Performances énergétiques
- Classe Énergie: D
- A+
- A
- B
- C
- D
- E
- F
- G











