Description
2 pièces traversant en dernier étage
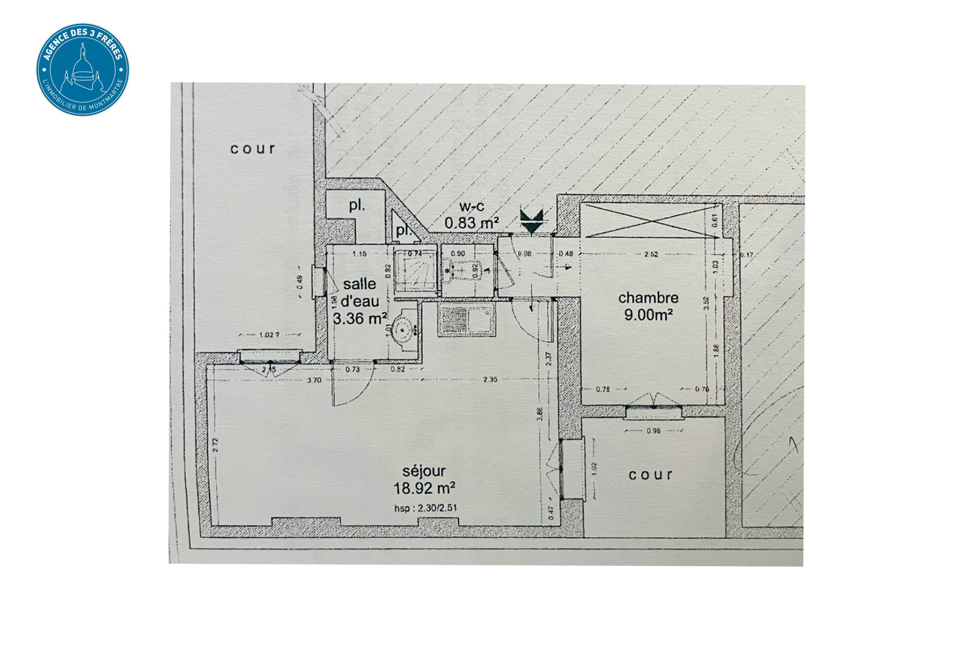
L’Agence des 3 Frères vous propose ce charmant 2 pièces traversant de 33m² situé face aux jardins du Sacré-Cœur. Installé au 5eme et dernier étage d’une copropriété saine, il se compose d’une entrée, d’un séjour avec cuisine ouverte, d’une chambre avec rangements, d’une salle d’eau avec fenêtre et de toilettes séparées.
Lumineux à toute heure bénéficiant de 4 expositions et de belles vues dégagées. Plan sans perte d’espace et disposition facile et agréable à vivre. Faibles charges (85€/mois) A visiter sans tarder….
Résumé
- Prix 355000
- Nombre de pièces 2
- Surface Carrez 32.99
- Surface au sol 33.21
- Chambres 1
- Salle d'eau 1
- Étages 5
- Nombre étage 5
- Charges 1024€
- Taxe foncière 408€
- Nombre de lots 15
- Honoraires Acquéreur
Aménagements :
- Alarme
- Chauffage individuel
- Cuisine aménagée
- Cuisine équipée
- Cuisine ouverte
- Dernier étage
- Digicode
- Double vitrage
- Entrée
- Exposition Est
- Exposition Sud
- Fibre optique
- Parquet
- Porte sécurisée
- Répartition électrique
- Salle d'eau
- Traversant
- WC séparé
Facilités
- Métro Anvers 150m
- Métro Abbesses 400m
- Métro Pigalle 450m
- Commerces 100m
Nous avons aimé :
- L'adresse .
- La disposition .
Performances énergétiques
- Classe Énergie: G
- A+
- A
- B
- C
- D
- E
- F
- G
















